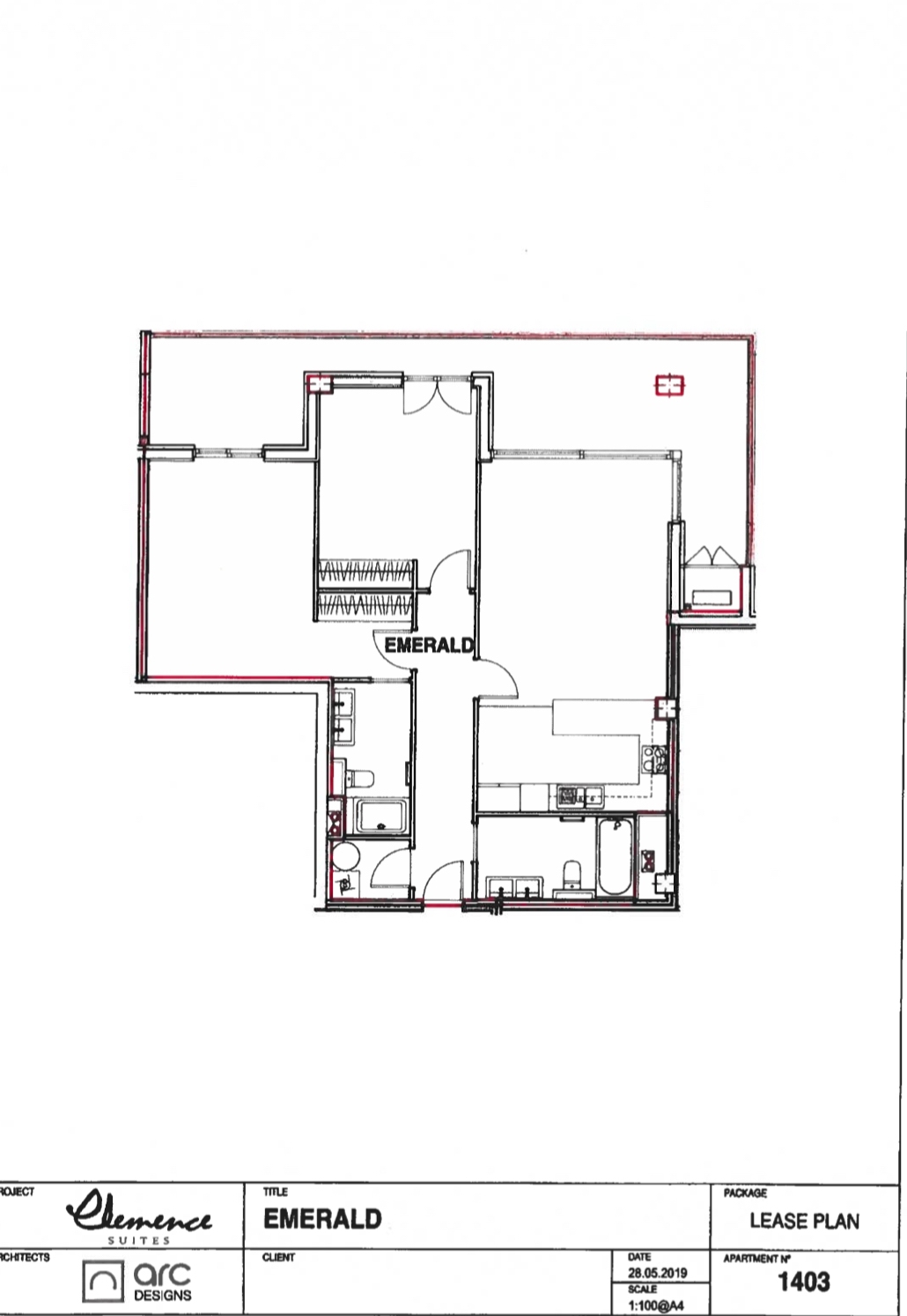
2
beds
2
Baths
87
Internal M2
80
External M2
beds
Baths
Internal M2
External M2
This stunning two-bedroom, two-bathroom penthouse apartment is located within the highly sought-after Clemence Suites development. Designed to offer contemporary comfort and stylish living, the property features a spacious open-plan living area that seamlessly connects to a modern fitted kitchen. Large floor-to-ceiling windows fill the space with natural light and open out onto a wraparound balcony, providing the perfect setting for outdoor relaxation and entertaining while enjoying impressive views across to Spain and the Mediterranean Sea.
Both bedrooms are fitted with ample built-in wardrobes, offering excellent storage solutions. The master bedroomboasts its own ensuite bathroom and direct access to a private balcony area, creating a serene retreat within the home. A large family bathroom and a separate utility room add to the practicality and convenience of this beautifully appointed property.
Residents of Clemence Suites benefit from exclusive access to a communal gym and swimming pool, enhancing the overall lifestyle experience. The apartment also includes one private parking space, providing secure and convenient parking. Ideally positioned, this property is just a 15-minute walk to Gibraltar’s town centre and within easy walking distance to Marina Bay, the land frontier with Spain, and nearby beaches.
Offering a superb combination of luxury, location, and comfort, this penthouse apartment presents an exceptional opportunity for both homeowners and investors seeking a premium residence in one of Gibraltar’s most desirable developments.
 
                         
                        Fill this form and one of our representatives will get back to you shortly.